LUOGO
BARZIO-ITALIA
BARZIO-ITALIA
STATO DI AVANZAMENTO
CONCLUSO – 2022
TIPOLOGIA DI INCARICO
PRIVATO
TIPOLOGIA
RESIDENZIALE
ATTIVITA’
PROGETTAZIONE E DIREZIONE LAVORI
TEAM DI PROGETTO
ALESSANDRA UBERTAZZI
STUDIO COMBI – ALFREDO COMBI
DIREZIONE LAVORI
STUDIO COMBI – ALFREDO COMBI
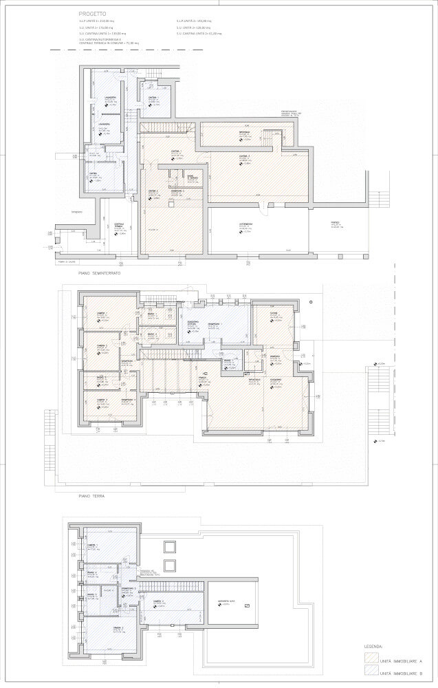
DESCRIZIONE
Frazionamento di una villa con ampliamento, attualizzazione spazi e finiture, nuovo progetto di facciata.


















